2019-07-01 08:59
在圣托里尼葡萄园,挖一座浮岛

© Antonis Tzortzis (studiotaf.gr)
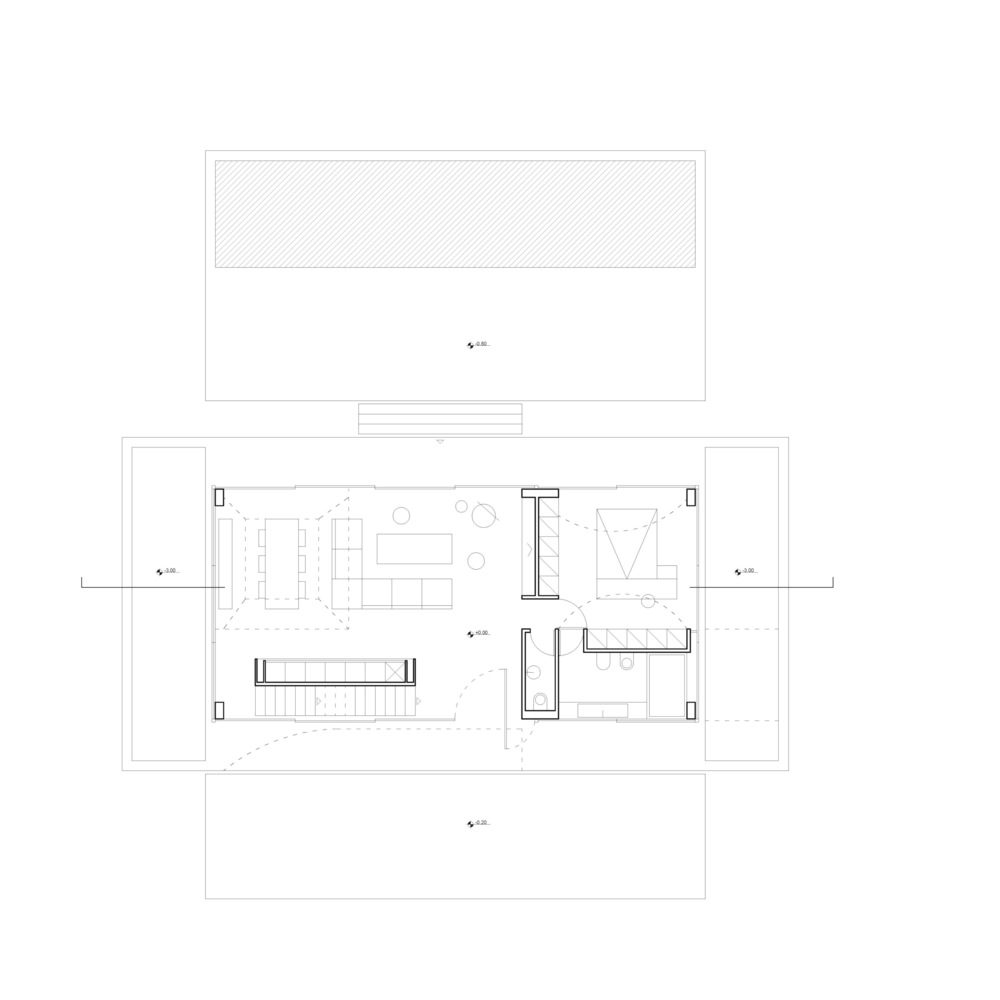
Kapsimalis Architects 建筑事务所日前公布了希腊圣托里尼岛葡萄园项目的细节部分。该项目的设计理念是在一个周围没有景观的地方建造一座土屋顶住宅空间。为了建造土屋顶,这块场地被升高了2.6米,从而形成了下面的生活空间,并以火山岩和洞穴石自然侵蚀的特性雕刻而成。

© Antonis Tzortzis (studiotaf.gr)
底层位于高架屋顶下面,由开放式的坐位、餐厅和厨房空间、主卧、浴室和卫生间组成。屋顶比地面高3.2米,形成了一个带办公室的阁楼。主入口位于西侧,东边是通往阁楼和地下室的通道。一个细长条的游泳池与室外的客厅庭院融合在一起。

© Antonis Tzortzis (studiotaf.gr)
这种高架屋顶的特点是屋顶带有土地表面的层次、颜色和纹理,类似于现有的地下火山的地质结构,而底层与推拉玻璃门形成了鲜明的对比,形成了一种悬浮屋顶的错觉。周围的景观可以映射在底层的立面上,这也与周围环境自然的连接在一起,而升起的屋顶则就像是一块原始土地的雕塑。

© Antonis Tzortzis (studiotaf.gr)
室内空间中的墙壁和天花板都采用了灰泥粉刷,地板是工业水泥地板色调,这些都与外墙的土质色调一致。固定隔断墙内衬着天然的橡木,而移动家具作为特殊的部件,延续着建筑相同的物性。







本文所有图片均来自 © Antonis Tzortzis (studiotaf.gr)
著 Niall Patrick Walsh
译 庄力
来源:ArchDaily
最新文章
正在加载...